Enviar imóvel a amigo
Saber mais »
captcha
Campos obrigatórios *

Moradia T3 - Aradas

485 500 €
Seguir imóvel Receba um alerta quando existir uma Baixa de Preço
Nome
Insira o código da imagem
captcha
Código
3
3
1
183 m²
204 m²
235 m²
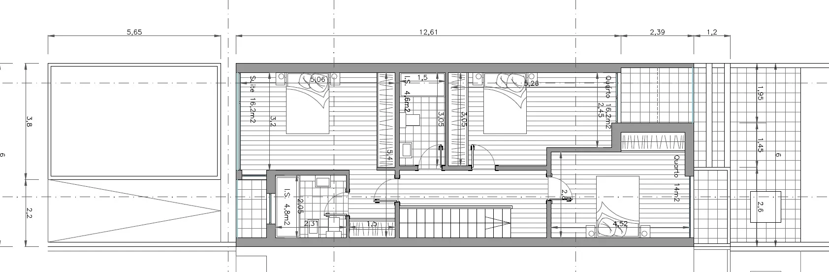
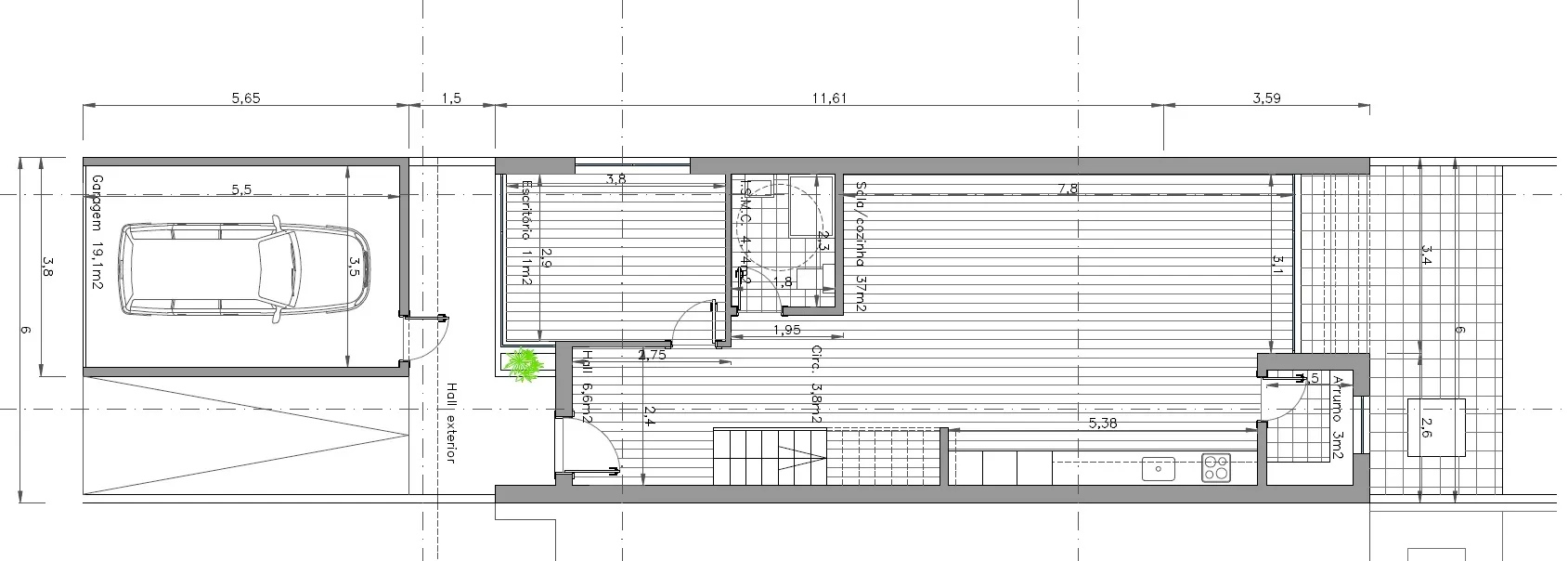
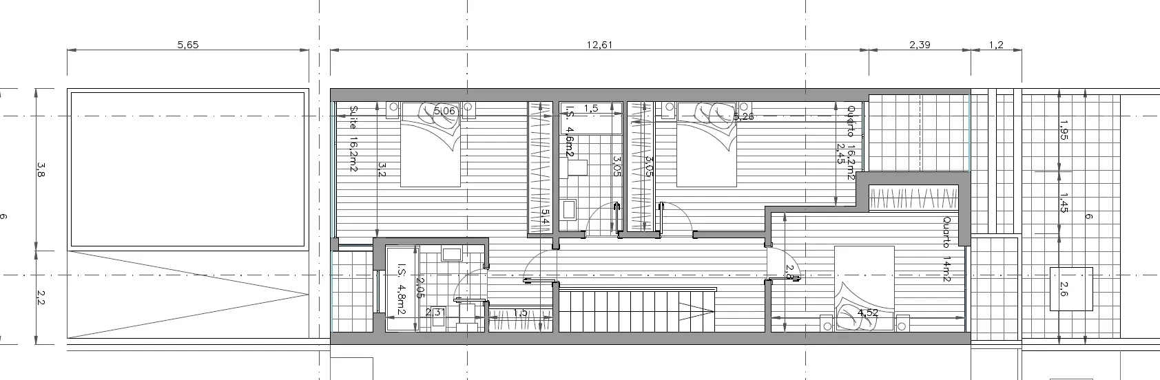
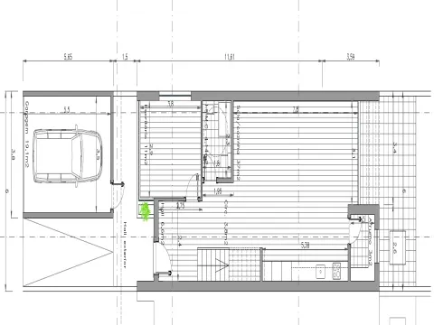
Vende-se Moradia Unifamiliar em construção - Aradas

Moradia T3 á venda em Aradas com previsão de conclusão em Julho de 2025.
O Imóvel de tipologia T3 é composto por dois pisos e possuirá garagem, dois lugares de estacionamento exteriores e um agradável jardim com um muro de vedação onde poderá desfrutar de toda a sua privacidade familiar.
Localiza-se a escassos minutos de centro da cidade de Aveiro e combina a tranquilidade da habitação com a proximidade de todos os serviços imprescindíveis ao seu quotidiano.

Destacam-se os acabamentos de luxo e a estética moderna e bastante funcional.
 
Newimo Realtors
Somos uma agência imobiliária que vai além de satisfazer as necessidades dos clientes - queremos superá-las!
Seja para comprar, vender ou arrendar, oferecemos um atendimento personalizado, trabalhando lado a lado consigo para encontrar a solução ideal.
Contamos com uma equipa experiente, qualificada e focada no sucesso de cada operação. Sabemos que uma boa carteira de imóveis, por si só, não basta. Por isso, estudamos o mercado a fundo para oferecer sempre a melhor recomendação.
Diga-nos o que procura. Estamos prontos para ajudar.
Tipo de imóvel Moradia
Tipologia 3 Quartos
Objetivo Venda
Estado Em Construção
Preço 485 500 €
Ano Construção N/D
País Portugal
Distrito Aveiro
Concelho Aveiro
Freguesia Aradas
Zona (Aradas - Qt. do Picado)
Interessado no Imóvel?
Data
Hora
Nome
Contacto
Mensagem
captcha
Código
Características Gerais
Gerais
  •  
Divisões
Divisões Área Pavimento Paredes Tectos Observações
 
Meio Envolvente
  •  
Facilidades
  •  
Domótica
  •  
Energias Renováveis
  •  
Localização do Imóvel
Veja também
  • Moradia T3 para Restaurar em Mataduços – Esgueira
  • Moradia T3 para Restaurar em Mataduços – Esgueira
  • Moradia T3 para Restaurar em Mataduços – Esgueira
  • Moradia T3 para Restaurar em Mataduços – Esgueira
  • Moradia T3 para Restaurar em Mataduços – Esgueira
Moradia T3 para Restaurar em Mataduços – Esgueira
3
197 m² A. Bruta
110 m² A. Bruta Privada
100 m² A. Útil
1309 m² A. Terreno
Contactar
  • Moradia T4 em Santa Joana - Aveiro
  • Moradia T4 em Santa Joana - Aveiro
  • Moradia T4 em Santa Joana - Aveiro
  • Moradia T4 em Santa Joana - Aveiro
  • Moradia T4 em Santa Joana - Aveiro
Moradia T4 em Santa Joana - Aveiro
Santa Joana, Aveiro
780 000 €
Moradia T4 em Santa Joana - Aveiro
780 000 €
4
3
2
135 m² A. Bruta
135 m² A. Bruta Privada
135 m² A. Útil
623 m² A. Terreno
Contactar
  • Moradia T2+1 - São Bernardo
  • Moradia T2+1 - São Bernardo
  • Moradia T2+1 - São Bernardo
  • Moradia T2+1 - São Bernardo
  • Moradia T2+1 - São Bernardo
Moradia T2+1 - São Bernardo
São Bernardo, Aveiro
345 000 €
Moradia T2+1 - São Bernardo
345 000 €
Moradia T2+1 - São Bernardo São Bernardo, Aveiro
2
2
1
150 m² A. Bruta
150 m² A. Bruta Privada
108 m² A. Útil
323 m² A. Terreno
Contactar
Estamos disponíveis para o ajudar Pretendo ser contactado
Data
Hora
Nome
Contacto
Mensagem
captcha
Código
O que é a pesquisa responsável
Esta pesquisa permite obter resultados mais ajustados à sua disponibilidade financeira.